-
Römervilla Frauenthal
-
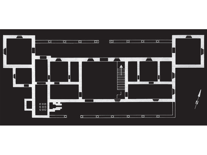
Das Luftbild lässt einen landwirtschaftlichen Betrieb aus der römischen Zeit (villa rustica) erkennen. Keramikfunde, die in diesem Areal von der Ackeroberfläche aufgesammelt wurden, belegen, dass das Landgut vom 2. bis zum 4. Jahrhundert n. Chr. bewirtschaftet wurde. Es bestand aus einem steinernen Hauptgebäude und mehreren, vermutlich hölzernen Nebengebäuden. Diese dienten als Wohngebäude für Bedienstete, Ställe, Speicher oder Werkstätten. Umgeben war das Hofareal vermutlich von einem Graben oder einer Hecke.
-


